10
  • Tipo de Imóvel
  • Apartamento
  • 1-2-3
  • Quartos
  • 1-2-3
  • Casas de Banho
  • 1
  • Garagem
  • Tamanho da área
  • 2024
  • Ano de Construção
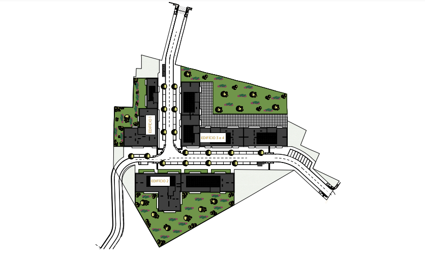
Novo Empreendimento – OPorto Plaza – Paranhos

Descrição

EMPREENDIMENTO NOVO – Oporto Plaza- Paranhos

 

A IMOBILIARE Realty Advisory tem o privilégio de comercializar este empreendimento novo designado por “ Oporto Plaza”,  situado no antigo centro Hípico do Porto.

Excelente oportunidade para investidores e para quem pretende a sua habitação própria.

LOTE 3 -Preço de lançamento/Tipologias disponíveis:

T1~+1 desde – 289.900,00€

T2 desde – 389 900,00€

 

Apartamentos totalmente equipados com eletrodomésticos da marca Bosch , sanitários da Valadares, todos os apartamentos usufruem de um espaço exterior/varanda e  lugar de garagem.

Cada apartamento foi desenhado para proporcionar conforto, bem-estar e qualidade de vida. A sua arquitetura clean destaca-se pela elegância intemporal, enquanto as amplas varandas se tornam um refúgio de tranquilidade, convidando a momentos de lazer e contemplação. Mais do que espaços exteriores, são janelas para um mundo onde a luz natural é protagonista.

Oporto Plaza contempla um amplo espaço verde e jardins com caminhos pedonais, ginásio ao ar livre e um parque infantil

Neste projeto, implementamos ainda o aproveitamento das águas pluviais, permitindo a redução do consumo de água potável e a reutilização eficiente deste recurso em tarefas como rega, limpeza e outros usos não potáveis, diminuindo os custos ambientais e financeiros.

 

Conclusão das Infraestruturas planeado para Julho 2025;
Conclusão da Estrutura de Betão previsto para Março 2026;
Conclusão:  Prevista para Setembro 2028.

 

Não hesite em nos contactar para mais informações!

 

 

 

 

 

 

 

 

Detalhes

Atualizado em Dezembro 12, 2025 a 5:19 pm
  • ID do Imóvel PRT-189
  • Quartos 1-2-3
  • Casas de Banho 1-2-3
  • Garagem 1
  • Ano de Construção 2024
  • Tipo de Imóvel Apartamento
  • Estado do Imóvel Comprar, Investir, New Costruction

Certificado Energético

  • Certificado Energético: A
  • A+
  • | Energy class A
    A
  • B
  • B-
  • C
  • D
  • E
  • F
  • G
  • H
  • Localidade: Porto
  • Distrito: Porto
  • Freguesia: Paranhos

O que está por perto?

Por favor forneça a sua chave API Clique aqui

Informação de Contacto

Ver listagens
Ricardo Chaves
  • Ricardo Chaves

Peça informações sobre este Imóvel

Imóveis Semelhantes

0 Reveja

Ordenar por:
Deixe um comentário

Deixe um comentário

Comparar listagens

Comparar